◆南北線『西ヶ原』駅徒歩8分
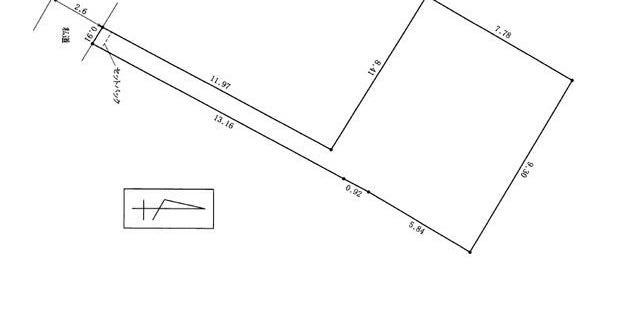
◆84.01㎡(公簿)
◆坪単価約※※※※万円
◆再建築不可
詳細はお問い合わせくださいませ!
<物件概要>
所在:東京都北区西ヶ原3丁目
アクセス:南北線『西ヶ原』駅徒歩7分
地目:宅地
土地面積:84.01㎡(公簿)
権利:所有権
接道:南西側約2.6m道路に0.91m接道(再建築不可)
用途地域:1中高
建ぺい率/容積率:60 / 150
取引形態:媒介
情報公開日:※※※※
不適合接道、再建築不可














◆南北線『西ヶ原』駅徒歩8分
◆84.01㎡(公簿)
◆坪単価約※※※※万円
◆再建築不可
詳細はお問い合わせくださいませ!
<物件概要>
所在:東京都北区西ヶ原3丁目
アクセス:南北線『西ヶ原』駅徒歩7分
地目:宅地
土地面積:84.01㎡(公簿)
権利:所有権
接道:南西側約2.6m道路に0.91m接道(再建築不可)
用途地域:1中高
建ぺい率/容積率:60 / 150
取引形態:媒介
情報公開日:※※※※
不適合接道、再建築不可












